Plot of land of 2,000 m² with a detached house in Cunit
420,000 € 153 m2 3 rooms 2 bathrooms
Cunit
It is special for...
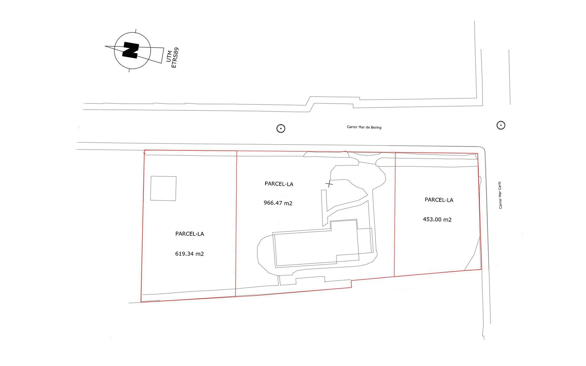
The urban plot of land of 2,000 m² (group of 3 plots)
One-floor detached house with a 153 m² built area
Located in residential Cunit
Characteristics:
- Plot of land of 2,000 m² with a one-floor detached house with a 153 m² built area in residential Cunit.
- The land is urban and it is a group of 3 plots. Topographic report available.
- It comprises a spacious hall, a living room with a fireplace, an independent kitchen and a laundry room, 3 double bedrooms with built-in wardrobes plus a space for an office or a study and 2 full bathrooms.
- Detached house with main south-eastern aspect.
- Built in 1964. It has gas heating with radiators, air conditioning, ceramic floor, wooden interior and exterior carpentry, optical fibre and alarm.
- It is located in a residential area, quiet and exclusive, 2.2 km far from the Renfe train station in Cunit and 1.2 km far from the beach. It has a strategic location, 60 km far from Barcelona, 40 km far from Tarragona and 50 km far from El Prat airport, and with easy connection with the motorways C32 and AP7.

































