Terreny de 2.000 m² amb xalet a Cunit
420.000 € 153 m2 construïts 3 habitacions 2 banys
Cunit
Crear oportunitats
On altres persones hi veuen només un terreny amb una casa, jo hi veig fantàstiques oportunitats d’inversió, amb una excel·lent relació qualitat-preu. Hi veig la possibilitat de construir-hi una altra casa al meu gust, rodejada de bosc. I hi visualitzo les infinites experiències que hi tindria. També penso en la possibilitat de construir-hi dos xalets més –cadascun amb jardí i piscina– per vendre’ls posteriorment. O simplement gaudir d’aquesta casa tota en una planta i un jardí privat de 2.000 m2. En qualsevol cas, les oportunitats no passen soles: es visualitzen, es creen i es gaudeixen. Aquest és el procés d’un projecte diferenciat dels altres.
És especial per...
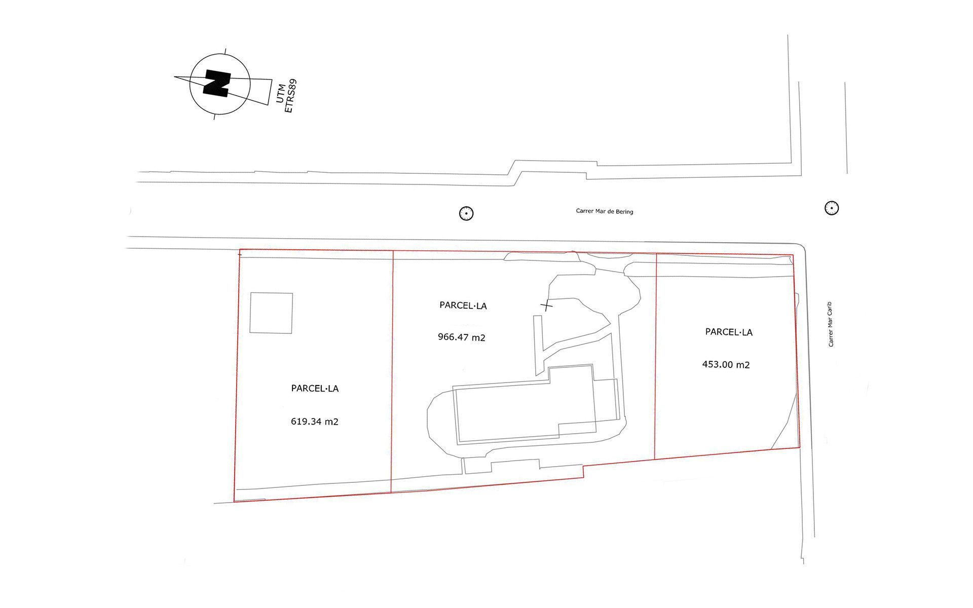
El terreny urbà de 2000 m² (conjunt de 3 parcel·les)
Xalet tot en una planta de 153 m² construïts
Ubicació a Cunit residencial
Característiques:
- Terreny de 2.000 m² amb un xalet tot en una planta de 153 m² construïts a Cunit residencial.
- El terreny és urbà i és un conjunt de 3 parcel·les. Disponible l’informe topogràfic.
- El xalet consta d’un ampli rebedor, saló amb xemeneia, cuina independent i safareig, 3 habitacions dobles amb armaris encastats més un espai per a un despatx o estudi i 2 banys complets.
- Casa a quatre vents amb orientació principal al sud-est.
- Construïda el 1964. Disposa de calefacció de gas amb radiadors, aire condicionat, terra de gres, tancaments interiors i exteriors de fusta, fibra òptica i alarma.
- És en una urbanització residencial, tranquil·la i selecta, a 2,2 km de l’estació de Renfe de Cunit i a 1,2 km de la platja. Té una ubicació estratègica, a 60 km de Barcelona, 40 km de Tarragona i 50 km de l’aeroport del Prat, i amb fàcil connexió amb les autopistes C32 i AP7.

































